chiodoCORDACORDAchiodo

mappa1 1608SOGLIE STORICHE DELL'EVOLUZIONE DEL MICROSISTEMA

"Soglia storica1608"


CUBO Soglia storica 1625: nella zona dell’attuale stadio Mirabello il vescovo di Reggio fa costruire una villa dotata di un grande giardino ricco di ogni genere di essenza arborea, in questo stesso periodo una villa preesistente nei pressi dei borghi di S. Pietro viene trasformata in osteria. mappa2 1630
CUBO Soglia storica 1650: la villa Mirabello viene demolita ed il parco è usato per esercitazioni militari. Si riscontra la presenza di un molino per macinare il grano, detto "del mercato o del portone", posto nei pressi dell’incrocio tra Viale Olimpia e Via Matteotti, il molino era azionato dall’acqua di un canale che scorreva lungo quella che oggi è Via Matteotti. mappa3 1660
CUBO Soglia storica del 1734 mappa4 1734
CUBO Soglia storica 1830: il Leoncino viene trasformato in lazzaretto; dieci anni dopo il Leoncino viene ristrutturato secondo il progetto dell’architetto Marchelli in ricovero per anziani. mappa5 1844
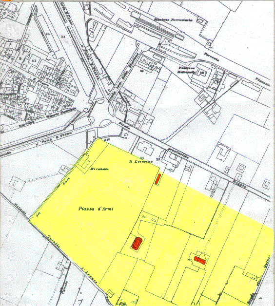
CUBO Soglia storica 1887: iniziato il trasferimento della piazza d’armi dalla cittadella all’area che va dal Mirabello all’attuale area della polveriera. Appare un edificio circa nella zona dell’attuale parcheggio della piscina che rimane fino al 1964.
CUBO Soglia storica 1904: inaugurato l’ippodromo e campo polisportivo nell’area del Mirabello. · Anno 1912: la società Reggio F.C. gioca la prima partita sui prati del Mirabello che diventano campo aperto alle partite; l’anno seguente il campo del Mirabello viene cintato provvisoriamente e gli spettatori che potevano assistere alle partite erano 2500-3000. mappa6 1910
CUBO Soglia storica 1919: iniziano i lavori sull’area Mirabello che è di proprietà comunale (concessa in enfiteusi allo Stato e da questi alle autorità militari che vi aveva posto la polveriera e il campo delle esercitazioni militari), il campo fu pronto prima della fine dell’anno ma le porte venivano montate e smontate in occasione delle partite. Sullo sfondo spiccava un elemento verticale che era la ciminiera di una fabbrica di conserve chiusa nel 1913 e sostituita da un cantinone, la ciminiera veniva usata dai ragazzi come gioco. L’anno seguente viene inaugurato il campo cintato del Mirabello con tribune scoperte e gradinate, il pubblico era separato dal campo prima con un cordone poi con una staccionata, la struttura poteva ospitare 300 spettatori. Nel 1921 viene inaugurata la tribuna in legno coperta dello stadio Mirabello. mappa6 1910
CUBO Soglia storica 1940: Viene edificata l’area che sta tra via Matteotti e viale Risorgimento, sorgono edifici anche di fronte al Mirabello tra via Matteotti e via C. Zucchi, si sviluppano edifici residenziali anche dietro all’area del campo scuola oltre via F. Luca da Reggio. Lo stadio assume una forme più imponente. mappa7 1940
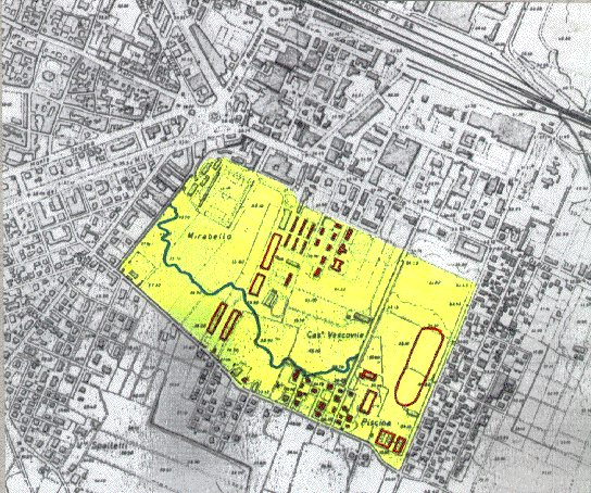
CUBO Soglia storica 1956: Appare viale Olimpia. Si nota la presenza della piscina, del campeggio, dei campi da tennis e dell’area di atletica. L’area in cui attualmente è posto l’asilo è detta (Casino Vescovile) ed è un’area a prato si nota la presenza di un canale o torrente che partendo da questa zona arriva ad attraversare la zona del parco di via Matteotti. Aumentano gli edifici residenziali dietro all’area del campo scuola; nasce invece una zona residenziale dietro l’area dell’asilo fino a via Terrachini e di fianco al capannone n’1. mappa9 1956
CUBO Soglia storica 1964: appare una zona residenziale tra il Mirabello e via Terrachini e si amplia quella tra via Melato e la Polveriera; nell’area che confina con via Melato, via F.Luca da Reggio e l’ultimo tratto di via Olimpia vengono sistemati due campi da calcio mappa10 1964
CUBO Soglia storica 1977: l’area detta del Leoncino che sta di fronte all’ingresso dell’area della polveriera su via Olimpia viene destinata a parcheggio. mappa11 1985
CUBO Soglia storica 1989: viene costruita la nuova tribuna coperta del Mirabello. mirabello

flame

chiodoCORDACORDAchiodo